













Haus JA
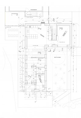
Eine Doppelgarage, vermutlich aus den 60ern, aber so ganz genau weiß man das nicht und es ist auch gar nicht wichtig, war der Ausgangspunkt. Sowohl für das entstandene Projekt, als auch für die Menschen, die dort leben. Diese alten Doppelgaragen sind oftmals schon echt nicht gut gebaut. Leider. Daher musste sie schweren Herzens weichen und mit ihm auch das Zuhause für Kinder, Hunde und andere Lebewesen. Immerhin ist der Kork, der auf der Garage klebte, wieder verbaut. Statt dem Rechteck der Garage gibt es nun ein L. Ein L um einen Schwimmteich herum. Ein L mit einem langen eingeschossigen Schenkel, dessen Ende/Anfang das “klassische” Gesicht richtung Hof ist, mit allem was dazu gehört: Segmentbogen, Eulen-Einfluglöcher, typische Fensterteilung mit Oberlicht etc. Im schmalen Schenkel situiert sind eine Schleuse, ein WC, ein Arbeitsbereich, ein Flur und der Platz für den Esstisch. Der Flur schaut westwärts vornehmlich durch die typischen Fenster in Richtung eines Stalls, der jedoch von Bäumen verdeckt wird. Letztere helfen im Sommer gegen Hitze, wodurch man keinen Sonnenschutz braucht. Die anderen Räume orientieren sich zum Schwimmteich und in den Garten mit dem einen wichtigen Baum, der erhalten werden musste. Nur der Essbereich hat hier ein typisches Fenster. Schließlich gibt es hier auch Gäste. Oder ist das Fenster hier nur Relikt des Entwurfsprozesses?
Das Bild des klassischen Bauernhauses will intakt bleiben, also sicher wegen der Gäste und nicht wegen des Entwurfsprozesses. Die anderen Fenster haben komische Formate, teilweise festverglast, teilweise mit hölzernen Öffnungsflügeln oder angelehnt an münsterländische Bauernhaus-Renovierungen.
Der Esstisch-Platz ist gleichzeitig der Anfang der Stube, die gute alte Bauernstube, sozusagen das Herz. Hier ist Vieles zu finden: der Esstisch (mit dem typischen Fenster), an dem auch die Mitarbeiter:innen mitessen, die Küche, der Kachelofen und im Eck die Stiege hinauf, daneben und damit unter der Stiege der Kachelofen, rechts davon der Durchgang zum Wohnzimmer und mit all dem der Übergang zum kurzen, zweigeschossigen Schenkel. Das Herz des Hauses trennt vielleicht den Bereich der Familie vom Bereich der Gäste und Mitarbeiter, vielleicht auch nicht.
Die Küche und das Wohnzimmer schauen beide nicht durch typische Fenster hinaus, eher durch solche, zumindest gestalterisch, aus dem Einfamilienhausbau der 90er und einem großen Fenster aus den Nullerjahren. Küche und Wohnzimmer, und damit der kurze Schenkel, haben auch andere Decken. Beton und Massivholz. Hingegen hat der lange Schenkel eine Holzbalkendecke.
Massivholz gibt es auch im Obergeschoss, damit es nicht überhitzt und weil öko. Die Holzwolle auf dem Dach hilft auch, genau so wie der mit Lehm verschmierte Ziegel, der die Wände ausmacht, ohne Dämmung. Wer braucht die schon? Ein altes Bauernhaus sicher nicht.
Ein, sagen wir mal, Kompliment für das Ego war zu diesem Projekt einmal: “Mah, ihr habt’s das Haus aber schön renoviert.” - Ist das gut oder schlecht, wenn es gar keine Renovierung im engeren Sinn war? Das Bild des klassischen Bauernhauses scheint also zu funktionieren, trotz 90er, Nuller und 2010er Gestaltung.
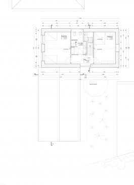
Im Obergeschoss gibt es also neben Massivholz auch Räume, Schlafraum, Kinderraum und Raum zum Duschen, Pinkeln, Scheißen und beim Zähne putzen auf die Stiege hinunter schauen. Oder aus dem Fenster mit der besten Belichtung zum Zeitung lesen.
Auf dem alltäglichen Weg in’s EG geht man übrigens über dieselben Steine, die zu Garagenzeiten noch der gepflasterte Gartenweg waren, nur sandgestrahlt. Also runter aus dem Massivholzdachschrägenraum über die Gartenwegstiege, die Stube durch den langen Schenkel und raus aus dem L zum Hof mit ebenfalls roten Dachziegeln, Kalkputz, wiederverwendeten Materialien, Schafen, Hunden, Kindern, anderen Lebewesen und renovierten Gebäuden im engeren Sinn.
Jahr: 2016-2017
Ort: Bildein














Haus JA
Eine Doppelgarage, vermutlich aus den 60ern, aber so ganz genau weiß man das nicht und es ist auch gar nicht wichtig, war der Ausgangspunkt. Sowohl für das entstandene Projekt, als auch für die Menschen, die dort leben. Diese alten Doppelgaragen sind oftmals schon echt nicht gut gebaut. Leider. Daher musste sie schweren Herzens weichen und mit ihm auch das Zuhause für Kinder, Hunde und andere Lebewesen. Immerhin ist der Kork, der auf der Garage klebte, wieder verbaut. Statt dem Rechteck der Garage gibt es nun ein L. Ein L um einen Schwimmteich herum. Ein L mit einem langen eingeschossigen Schenkel, dessen Ende/Anfang das “klassische” Gesicht richtung Hof ist, mit allem was dazu gehört: Segmentbogen, Eulen-Einfluglöcher, typische Fensterteilung mit Oberlicht etc. Im schmalen Schenkel situiert sind eine Schleuse, ein WC, ein Arbeitsbereich, ein Flur und der Platz für den Esstisch. Der Flur schaut westwärts vornehmlich durch die typischen Fenster in Richtung eines Stalls, der jedoch von Bäumen verdeckt wird. Letztere helfen im Sommer gegen Hitze, wodurch man keinen Sonnenschutz braucht. Die anderen Räume orientieren sich zum Schwimmteich und in den Garten mit dem einen wichtigen Baum, der erhalten werden musste. Nur der Essbereich hat hier ein typisches Fenster. Schließlich gibt es hier auch Gäste. Oder ist das Fenster hier nur Relikt des Entwurfsprozesses?
Das Bild des klassischen Bauernhauses will intakt bleiben, also sicher wegen der Gäste und nicht wegen des Entwurfsprozesses. Die anderen Fenster haben komische Formate, teilweise festverglast, teilweise mit hölzernen Öffnungsflügeln oder angelehnt an münsterländische Bauernhaus-Renovierungen.
Der Esstisch-Platz ist gleichzeitig der Anfang der Stube, die gute alte Bauernstube, sozusagen das Herz. Hier ist Vieles zu finden: der Esstisch (mit dem typischen Fenster), an dem auch die Mitarbeiter:innen mitessen, die Küche, der Kachelofen und im Eck die Stiege hinauf, daneben und damit unter der Stiege der Kachelofen, rechts davon der Durchgang zum Wohnzimmer und mit all dem der Übergang zum kurzen, zweigeschossigen Schenkel. Das Herz des Hauses trennt vielleicht den Bereich der Familie vom Bereich der Gäste und Mitarbeiter, vielleicht auch nicht.
Die Küche und das Wohnzimmer schauen beide nicht durch typische Fenster hinaus, eher durch solche, zumindest gestalterisch, aus dem Einfamilienhausbau der 90er und einem großen Fenster aus den Nullerjahren. Küche und Wohnzimmer, und damit der kurze Schenkel, haben auch andere Decken. Beton und Massivholz. Hingegen hat der lange Schenkel eine Holzbalkendecke.
Massivholz gibt es auch im Obergeschoss, damit es nicht überhitzt und weil öko. Die Holzwolle auf dem Dach hilft auch, genau so wie der mit Lehm verschmierte Ziegel, der die Wände ausmacht, ohne Dämmung. Wer braucht die schon? Ein altes Bauernhaus sicher nicht.
Ein, sagen wir mal, Kompliment für das Ego war zu diesem Projekt einmal: “Mah, ihr habt’s das Haus aber schön renoviert.” - Ist das gut oder schlecht, wenn es gar keine Renovierung im engeren Sinn war? Das Bild des klassischen Bauernhauses scheint also zu funktionieren, trotz 90er, Nuller und 2010er Gestaltung.
Im Obergeschoss gibt es also neben Massivholz auch Räume, Schlafraum, Kinderraum und Raum zum Duschen, Pinkeln, Scheißen und beim Zähne putzen auf die Stiege hinunter schauen. Oder aus dem Fenster mit der besten Belichtung zum Zeitung lesen.
Auf dem alltäglichen Weg in’s EG geht man übrigens über dieselben Steine, die zu Garagenzeiten noch der gepflasterte Gartenweg waren, nur sandgestrahlt. Also runter aus dem Massivholzdachschrägenraum über die Gartenwegstiege, die Stube durch den langen Schenkel und raus aus dem L zum Hof mit ebenfalls roten Dachziegeln, Kalkputz, wiederverwendeten Materialien, Schafen, Hunden, Kindern, anderen Lebewesen und renovierten Gebäuden im engeren Sinn.
Jahr: 2016-2017
Ort: Bildein